prodej

Prodej, administrativní budova, Školní ul., České Budějovice, 1260 m2

cena na dotaz

Poloha
Školní
Ukázat na mapě

Plocha
610 m2

1 / 21

Poloha a okolí

Interaktivní mapa

Detaily nemovitosti

Poloha objektu

klidná část obce

Stav

velmi dobrý

Konstrukce

cihlová

Energetická úspora

G - Mimořádně nehospodárná

Popis

REALDOMUS Vám ve výhradním zastoupení majitele zprostředkuje prodej administrativně obchodní budovy v obchodní zóně v ulici Školní v Českých Budějovicích.

Budova je kompletně zrekonstruována a připravena pro zájemce, který si pouze vybere finální úpravu povrchů užitných ploch, jenž budou provedeny na míru dle jeho potřeb a požadavků.

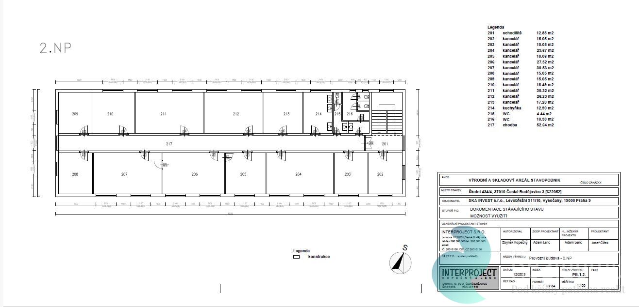
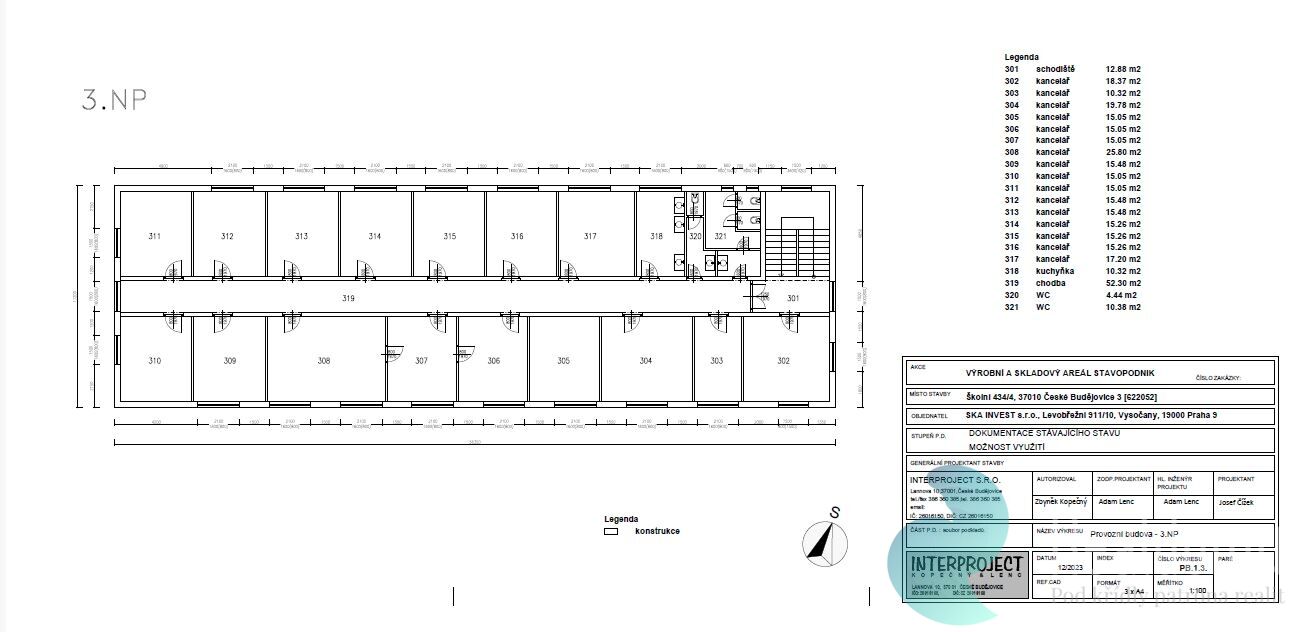
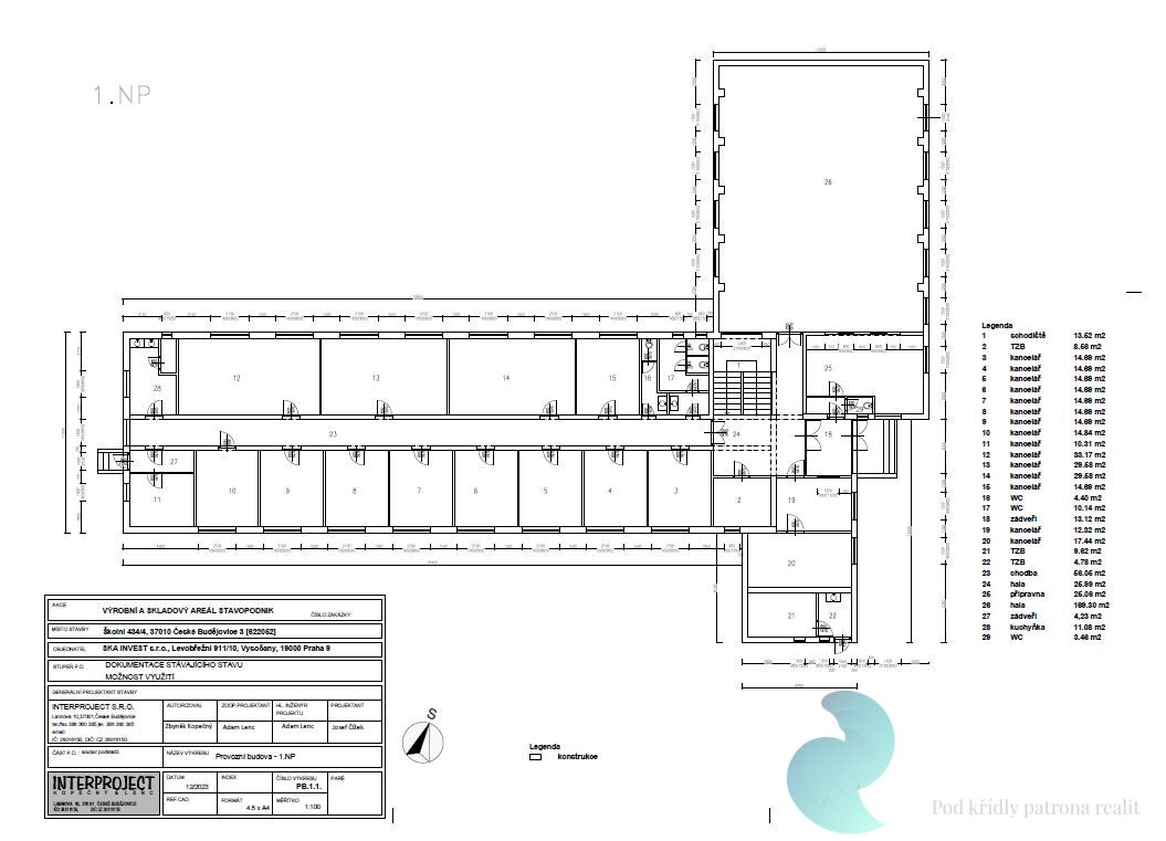
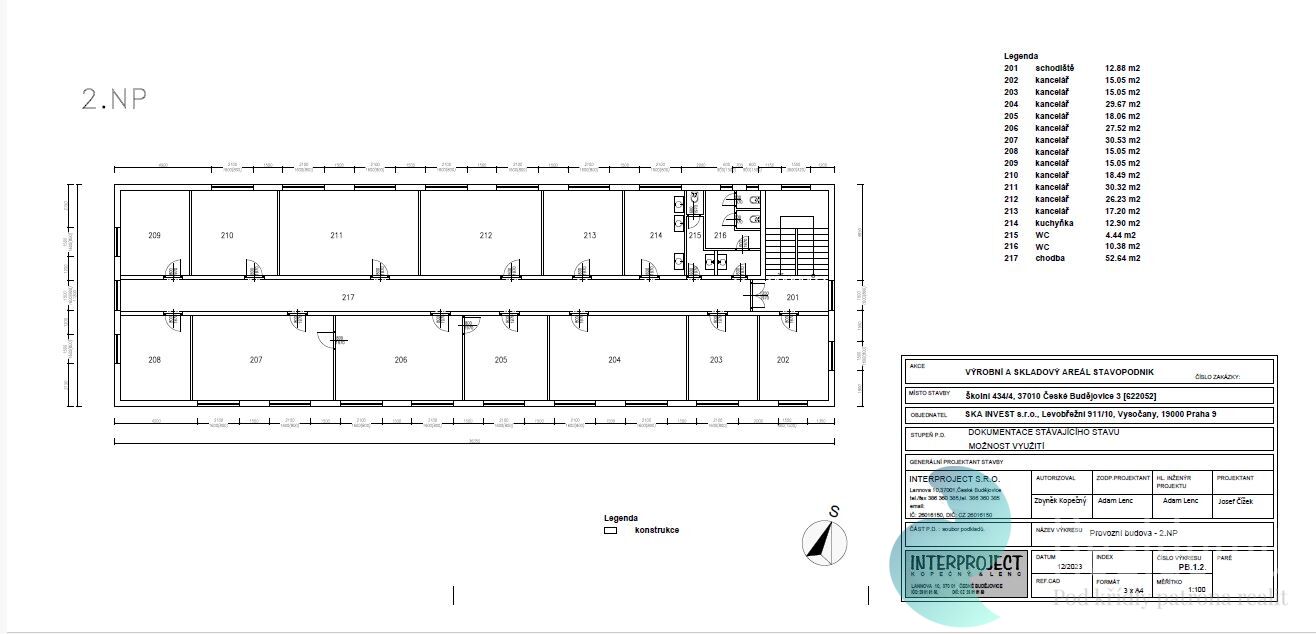
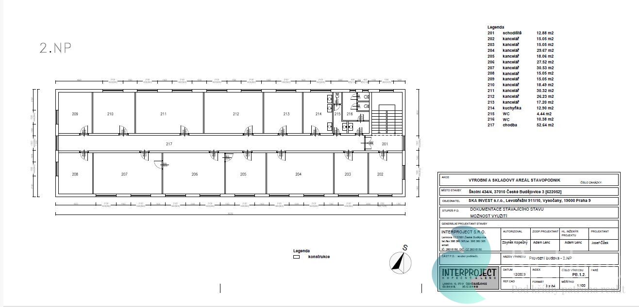
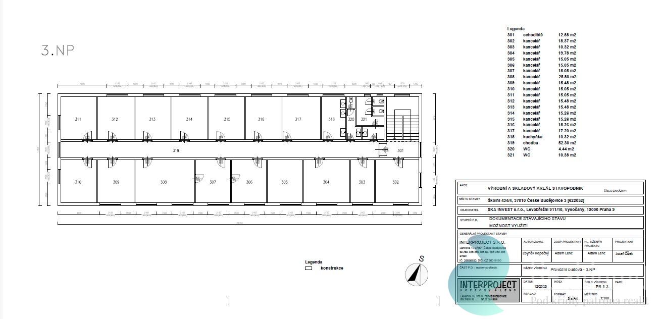
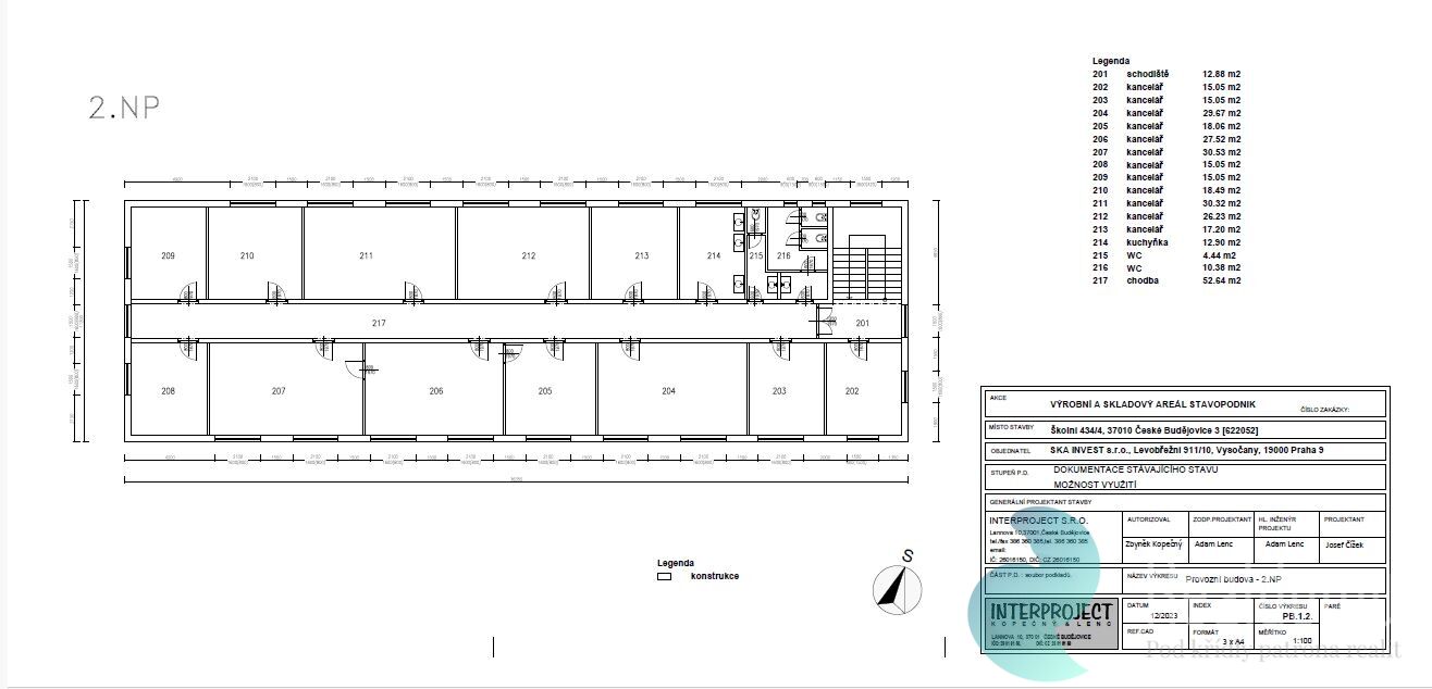
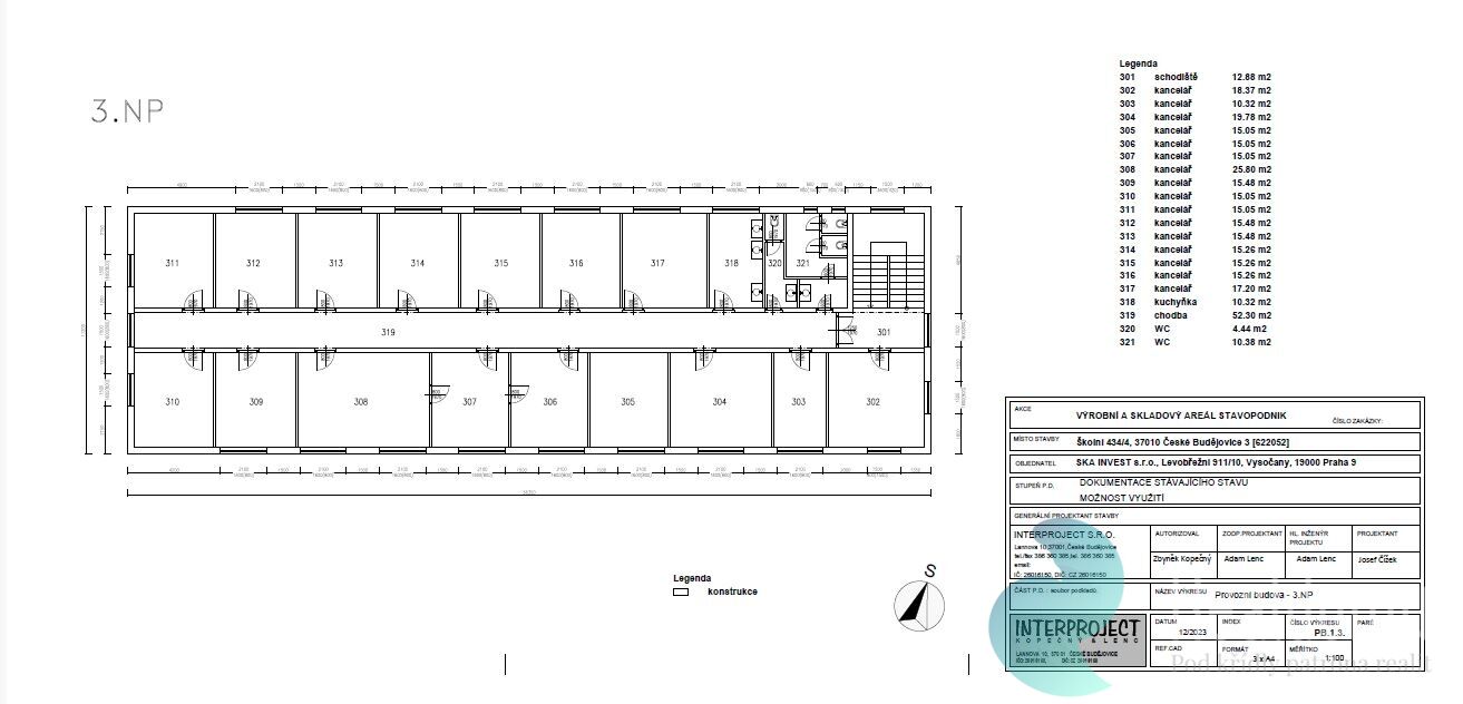
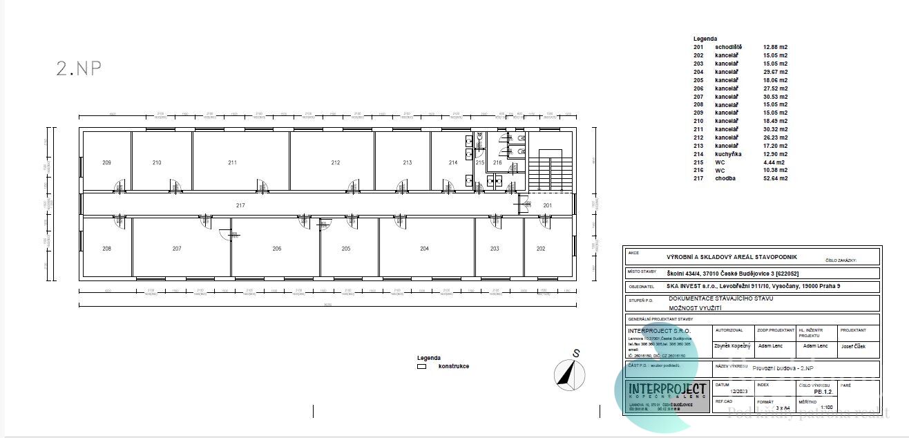
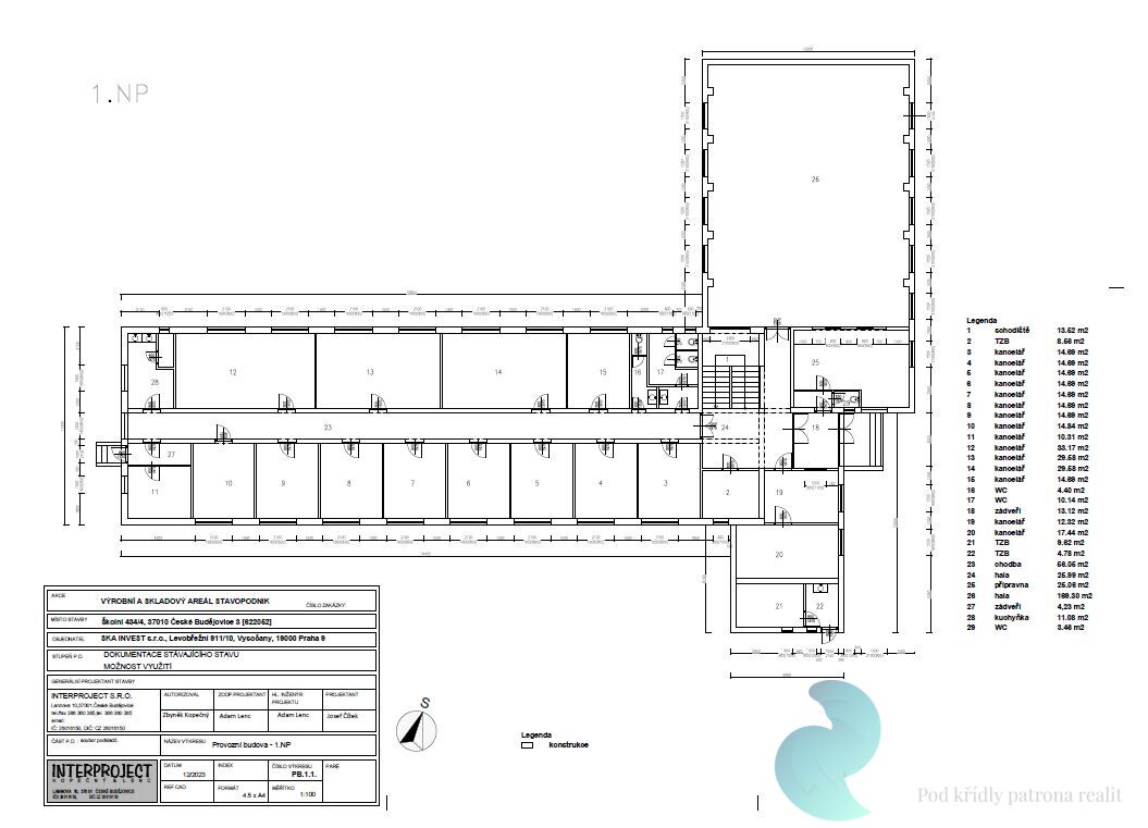
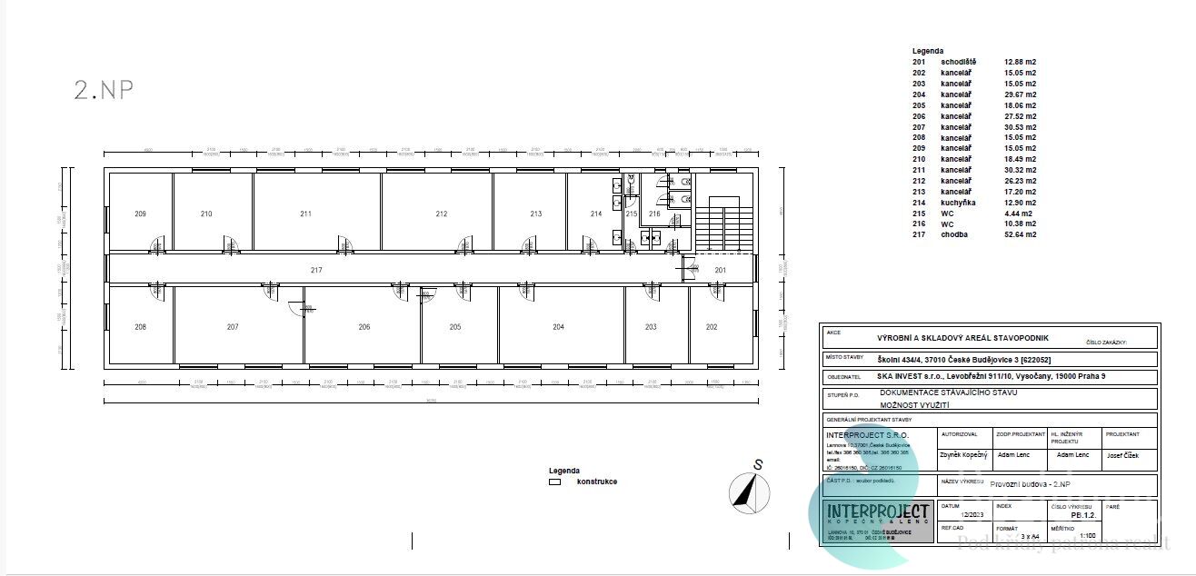
Předmět prodeje je kompletní tří podlažní administrativní budova, která se z 37 kanceláří, archivu, sociálního zázemí a obchodní prostory o výměře 169 m2.

Zájmové budova se nachází v uzavřeném areálu, který je přístupný (24/7) elektronicky ovládanou vjezdovou bránou.

Součástí předmětu prodeje je pozemek před budovou a také ve vnitrobloku o celkové výměře cca. 1.850 m2, které nabízí parkovací kapacity pro osobní i nákladní vozový park.

Bližší technické informace a podmínky transakce Vám poskytne REALDOMUS.

Galerie

Domluvme si schůzku

a pojďme se bavit osobně

Mgr. Petr Wölfl

Mám zájem o tuto nemovitost

Návrh: Martin Realizace: Lewest.cz