pronájem

Pronájem, administrativní budovy, Školní ul., České Budějovice, 610 m2

80 000 Kč / měsíc

Poloha
Školní
Ukázat na mapě

Plocha
610 m2

1 / 20

Poloha a okolí

Interaktivní mapa

Detaily nemovitosti

Poloha objektu

klidná část obce

Stav

velmi dobrý

Konstrukce

cihlová

Energetická úspora

G - Mimořádně nehospodárná

Popis

REALDOMUS Vám ve výhradním zastoupení majitele zprostředkuje pronájem administrativně obchodních prostor v obchodní zóně v ulici Školní v Českých Budějovicích.

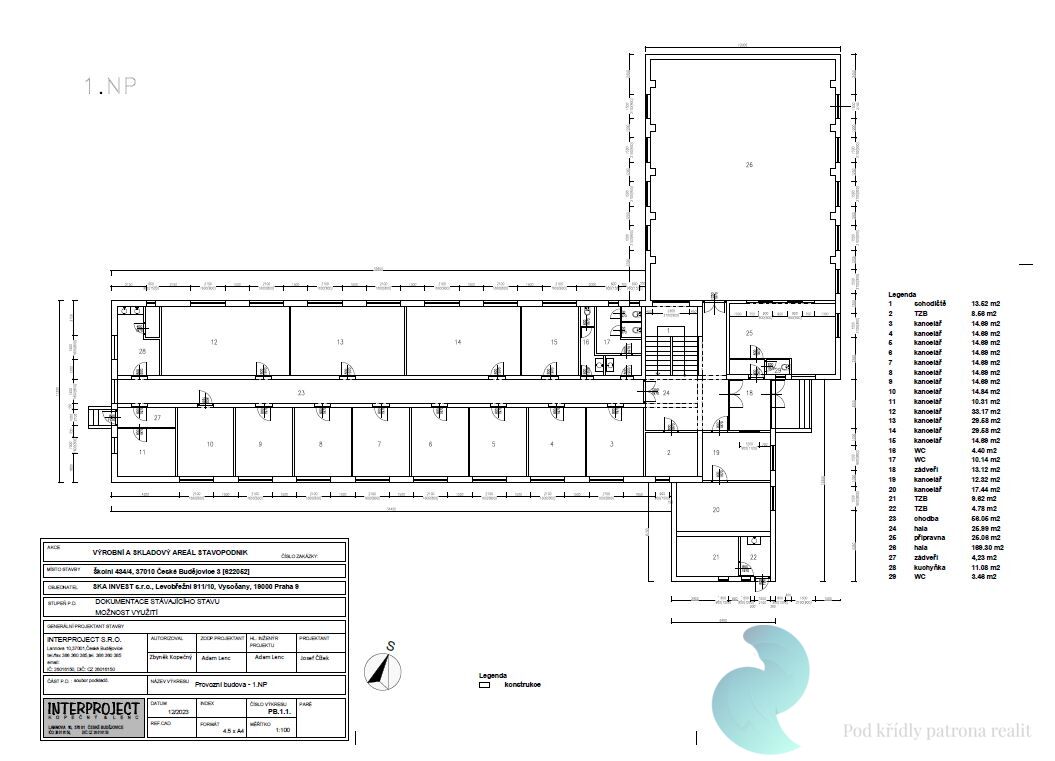
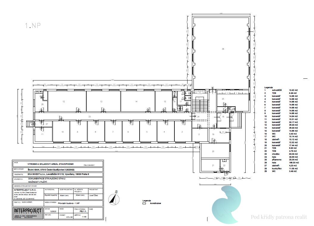
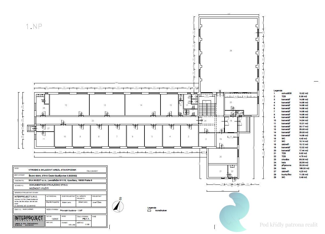
Budova je kompletně zrekonstruována a připravena pro nastěhování nájemce, který si pouze vybere finální úpravu povrchů užitných ploch.

Předmět nájmu se nachází v přízemí objektu a sestává z 13 kanceláří, archivu, sociálního zázemí (celkem 359 m2) a obchodní prostory o výměře 169 m2, která bude upravena dle potřeb nájemce.

Zájmové prostory jsou situovány v uzavřeném areálu, který je přístupný (24/7) elektronicky ovládanou vjezdovou bránou. Areál disponuje dostatečnou parkovací kapacitou jak pro osobní tak i nákladní vozový park.

Bližší technické informace a podmínky pronájmu Vám poskytne REALDOMUS.

Galerie

Domluvme si schůzku

a pojďme se bavit osobně

Mgr. Petr Wölfl

Mám zájem o tuto nemovitost

Návrh: Martin Realizace: Lewest.cz