pronájem

Pronájem, komerční prostor, Školní ul., České Budějovice, 128 m2 + zpevněné plochy a parkovací stání

25 000 Kč / měsíc

Poloha
České Budějovice
Ukázat na mapě

Plocha
128 m2

Detaily
nemovitosti

1 / 9

Poloha a okolí

Interaktivní mapa

Detaily nemovitosti

Poloha objektu

klidná část obce

Stav

velmi dobrý

Konstrukce

cihlová

Energetická úspora

G - Mimořádně nehospodárná

Popis

REALDOMUS Vám ve výhradním zastoupení pronajímatele zprostředkuje pronájem přízemní části multifunkční budovy v komerční zóně v Českých Budějovicích.

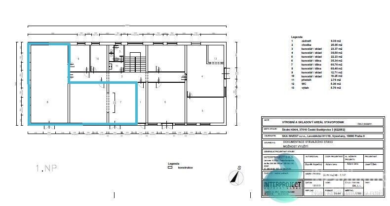
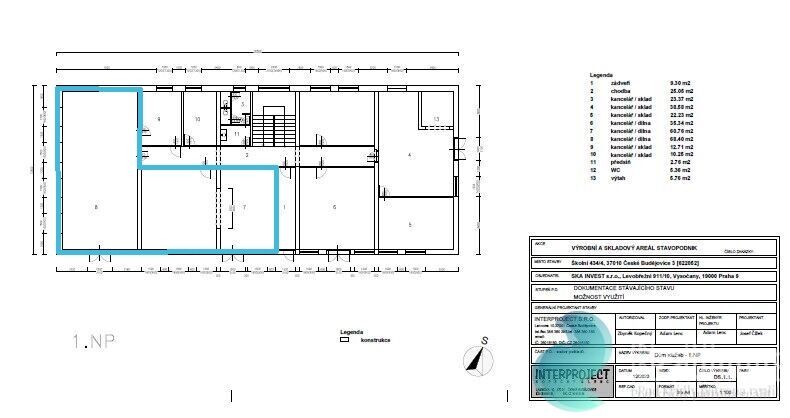
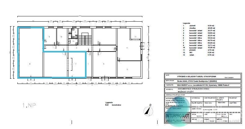
Předmět nájmu nabízí celkovou užitnou plochu 128 m2 a se sestává se ze 4 prostor využitelných jako sklad/dílna/administrativní zázemí (128 m2). Kromě vstupu pro personál disponuje objekt samostatným vstupem, který umožňují zásobování paletovou manipulací.

Potřeba sociální zařízení může být řešena instalací sanitárního kontejneru.

K předmětu nájmu je možné přidružit i rozsáhlejší zpevněné plochy pro skladování, manipulaci a parkování osobních i nákladních vozidel.

Objekt, ve kterém se nachází předmět nájmu je součástí uzavřeného komerčního areálu, který disponuje kompletní kapacitní infrastrukturou (dopravní konektivita, elektřina, plyn, voda, kanalizace).

Poloha předmětu nájmu umožňuje výborné napojení na dálnici D3 a budoucí severní spojku ČB, jejíž výstavba byla již zahájena.

Bližší informace o předmětu nájmu Vám poskytne REALDOMUS.

Galerie

Domluvme si schůzku

a pojďme se bavit osobně

Mgr. Petr Wölfl

Mám zájem o tuto nemovitost

Návrh: Martin Realizace: Lewest.cz