pronájem

Pronájem stodoly 284 m² s pozemkem 1101 m², České Vrbné, České Budějovice

18 000 Kč / měsíc

Poloha
České Vrbné
Ukázat na mapě

Plocha
1 385 m2

Detaily
nemovitosti

1 / 9

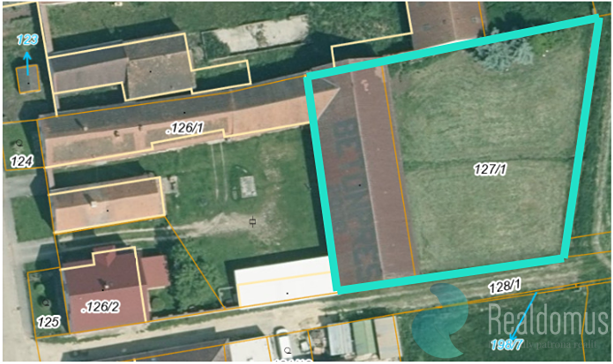
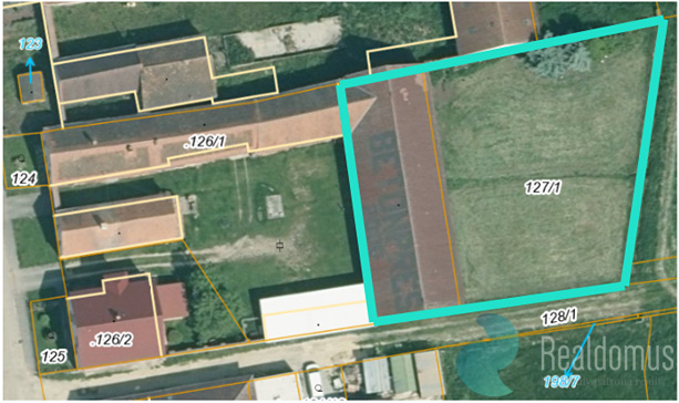
Poloha a okolí

Interaktivní mapa

Detaily nemovitosti

Poloha objektu

okraj obce

Popis

Nabízíme k pronájmu samostatně stojící stodolu o výměře 284 m² s přilehlým oploceným pozemkem o výměře 1101 m², situovanou v klidné městské části České Vrbné, České Budějovice.

Objekt není evidován v katastru nemovitostí, avšak je ve stabilním technickém stavu a v minulosti sloužil k zemědělským účelům. Stodola disponuje nově upravenou betonovou podlahou, která je vhodná pro uskladnění materiálu, paletového zboží, sezonního vybavení apod. Díky své dispozici a poloze je objekt vhodný také jako zázemí pro drobnou podnikatelskou činnost nebo zahradnické využití.

Na pozemku je již zavedena elektřina, což výrazně usnadňuje napojení na síť a následné využití. Přístup k pozemku je zajištěn po městské komunikaci, která umožňuje pohodlný příjezd i pro větší techniku.

Nájemné: 18 000 Kč/měsíc

Vratná kauce: 2x nájemné

Provize RK: 18 000 Kč + DPH

V případě zájmu o prohlídku mě neváhejte kontaktovat!

Galerie

Domluvme si schůzku

a pojďme se bavit osobně

Erik Fáček

Mám zájem o tuto nemovitost

Návrh: Martin Realizace: Lewest.cz